Klc/M214

Piętro
2
Liczba pokoi
3
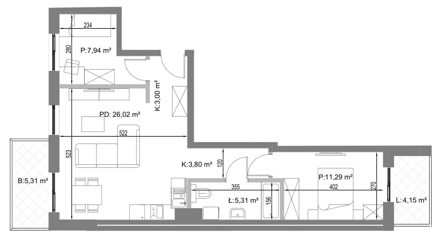
Powierzchnia mieszkania
59,17 m2
Cena za m2
8.300 zł
Wartość brutto
491.111 zł
KOMUNIKACJA
3 m2
ŁAZIENKA
5,31 m²
POKÓJ Z ANEKSEM
26,02 m²
KOMUNIKACJA
3,80 m²
POKÓJ
7,94 m²
POKÓJ
11,29 m2
BALKON
5,31 m2
LOGGIA
4,15 m2

Kontakt z biurem sprzedaży

Nasi sprzedawcy odpowiedzą na wszelkie pytania. Użyj formularza lub skontaktuj się bezpośrednio.

Nowa inwestycja w Koszalinie
Jana Pawła II

Chcesz wiedzieć więcej?
 Tel. 787 126 566
 Biuro Sprzedaży – ul. Staszica 16/1, Koszalin