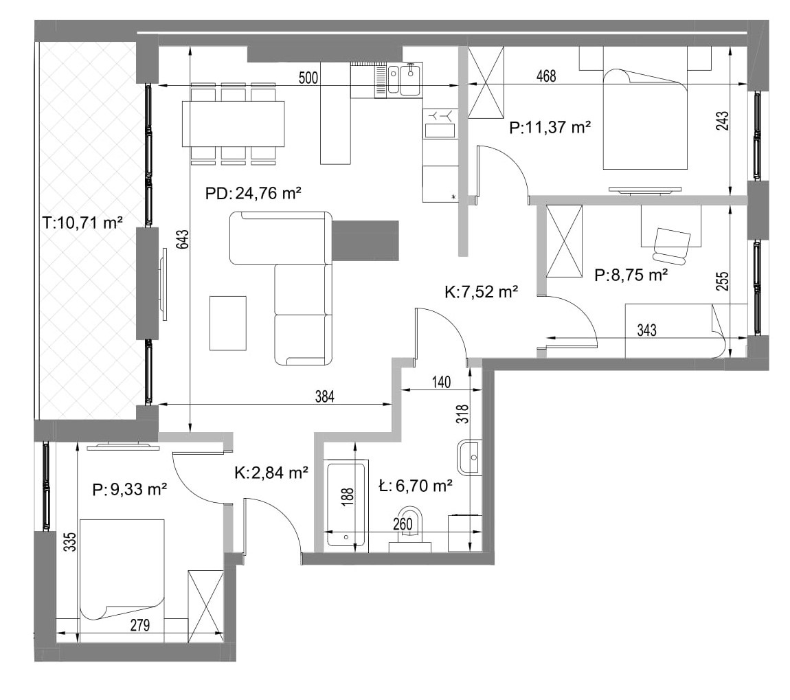
Klb/M507

Piętro
5
Liczba pokoi
4
Powierzchnia mieszkania
73,42 m2
Cena za m2
9.300 zł
Wartość brutto
682.806 zł
KOMUNIKACJA
2,84 m²
ŁAZIENKA
6,7 m²
POKÓJ Z ANEKSEM
24,76 m²
KOMUNIKACJA
7,52 m2
POKÓJ
11,37 m2
POKÓJ
8,75 m2
POKÓJ
9,33 m2
TARAS
10,71 m2

Kontakt z biurem sprzedaży

Nasi sprzedawcy odpowiedzą na wszelkie pytania. Użyj formularza lub skontaktuj się bezpośrednio.

  Aż 68,75 m² - 3 pokoje - perfekcyjnie zaprojektowanej przestrzeni
  Ogromny salon z aneksem – idealny na wspólne chwile z rodziną
  Dwa balkony – więcej przestrzeni do odpoczynku
  Cena promocyjna: 570 625 zł brutto
Cena z ostatnich 30 dni: 577 500 zł